Tanzhaus: Konzept wurde vorgestellt

So soll das Tanzhaus in Zukunft aussehen. Bild: Erwin Müller Group
Ein Defizit von 4,5 Millionen Euro in den letzten 42 Jahren, ein altmodischer Saal und auch der letzte Pächter, der das Restaurant im 2. Obergeschoss geführt hat ist gescheitert. Die Geschichte des Tanzhauses in der Donauwörther Reichsstraße nahm in den letzten Jahren immer mehr die Formen eines Dramas an. Alle Bemühungen von Seiten der Stadt, das Tanzhaus wieder mit Leben zu füllen scheiterten. Im Februar dann der Paukenschlag: Es gibt einen Investor, der Interesse am Tanzhaus hat (hier geht es zum Artikel): Erwin Müller will dem Tanzhaus zu neuem Glanz verhelfen und es wieder zu einem Schmuckstück machen. Jetzt hat der Investor seine Pläne in Donauwörth im Rahmen einer Informationsveranstaltung vorgestellt.
Donauwörth - Das Interesse am Tanzhaus war immer groß. Immer dann, wenn es um das Tanzhaus ging, wurde kontrovers diskutiert. Dass das Interesse nach wie vor ungebrochen ist, kann man auch daran ablesen, dass viele Donauwörther der Einladung der Stadt zur Informationsveranstaltung im Zeughaus gefolgt waren. Bereits im Vorfeld waren jedoch Stimmen laut geworden, die den doch etwas unüblichen Termin am Donnerstagmorgen um 9 Uhr, kritisierten. Gegenüber DRA rechtfertigte Oberbürgermeister Armin Neudert die Terminierung damit, dass man "alle Beteiligten schnellstmöglich an einen Tisch bringen wollte und man sich nur auf diesen Termin habe einigen können".  Dass das Tanzhaus ein Gebäude ist, dass viele in und um Donauwörth interessiert hat auch Erwin Müller zu spüren bekommen: "Normalerweise laufen unsere Projekte eher im Stillen ab", sagte Erwin Müller zu Beginn der Präsentation und fügte hinzu, "das öffentliche Interesse an diesem Projekt hat mich manchmal fast erschlagen."
Insgesamt zwei Arten von Immobilien seien es, die ihn und sein Team interessieren: Zum einen Gewerbeimmobilien für den eigenen Bedarf, zum anderen die Revitalisierungen von spannenden Gebäuden die tot seien, weil sie ihre Nutzung verloren haben. Zu letzterer Gruppe gehöre auch das Tanzhaus, so der Investor. An die interessierten Bürgerinnen und Bürger gewandt sagte er: "Wir wollen ihnen heute zeigen, was Erwin Müller und sein Team aus dem Tanzhaus machen würden. Ich bin in Donauwörth aufgewachsen und kann deshalb auch verstehen, was die Innenstadt benötigt." Im zukünftigen Tanzhaus wolle man, so die Idee der Erwin Müller Real Estate GmbH, leben, arbeiten und feiern kombinieren. Deshalb habe man sich den Leitgedanken "Tanzhaus Donauwörth -DIE Adresse für Kultur.Einkaufen.Wohnen.Arbeiten" überlegt.
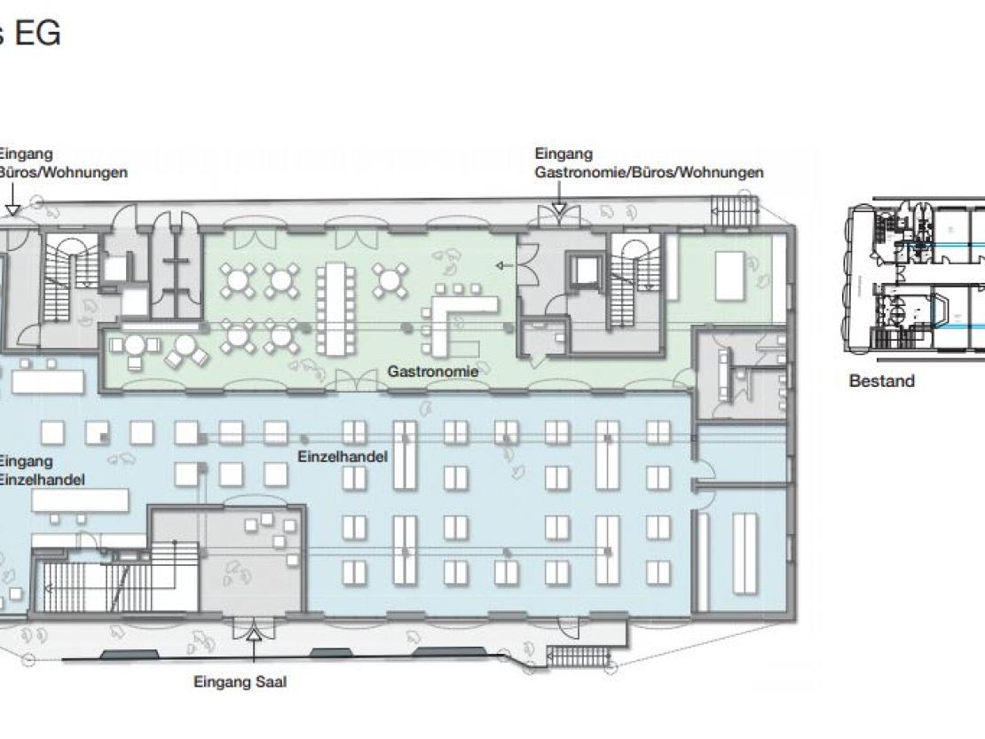
Wie sieht das Tanzhaus in Zukunft aus?
Was in den einzelnen Geschossen in Zukunft passieren soll erklärte Architekt Davide Conti den Anwesenden. Erklärtes Ziel sei es, so Conti, mit den geplanten baulichen Veränderungen qualitative Räume für alle Nutzer zu schaffen. Im Erdgeschoss wolle man deshalb durch das Auflösen der Arkaden, für mehr Transparenz und Helligkeit sorgen und so auch die Öffentlichkeit mehr miteinbeziehen. Im Konzept, so Erwin Müller, seien im Erdgeschoss Flächen für Einzelhandel und Gastronomie vorgesehen. Die bisherige Gastronomie, so Müller weiter, sei ohne Freiflächen nicht vermietbar. Deshalb wolle man die Gastronomie vom 2.OG in das Erdgeschoss verlagern.
Das Foyer und der Saal im 1. Obergeschoss sollen zwar, so der verantwortliche Architekt, revitalisiert werden, aber in ihrer ursprünglichen Form erhalten bleiben. Im zweiten Obergeschoss sollen in Zukunft teilweise Büros untergebracht werden, ebenso im kompletten 3. Stockwerk. In den beiden Dachgeschossen hingegen, so ist es im Konzept vorgesehen, sind Maisonette-Wohnungen geplant.
"Die Kombination der unterschiedlichen Nutzungsarte sorgt dafür, dass das Gebäude auch nach 18 Uhr, wenn die Büros geschlossen sind, noch mit Leben erfüllt ist", erklärte Davide Conti. Auch wenn man beim Material sehr auf Qualität bedacht sei, wolle man bei den Mietpreisen dennoch "unten" bleiben, versicherte Erwin Müller zum Abschluss der Präsentation.
Im Anschluss an die Präsentation des zukünftigen Eigentümers, erörterten auch noch die einzelnen Fraktionen ihre Entscheidungen zu Gunsten oder gegen den Verkauf. So sagte MdL Wolfgang Fackler, Vorsitzender der CSU-Fraktion, dass eine Wiederbelebung des Tanzhauses dringend notwendig sei und man sich die Entscheidung im Stadtrat nicht leichtgemacht habe. Ihm sei auch klar, dass der Verkauf bei vielen Bürgern für Wehmut sorge, weil das Tanzhaus in Donauwörth ein Symbol sei. Seiner Meinung nach sei das Tanzhaus derzeit aber eher ein Symbol für Stillstand. Das Engagement der Erwin Müller Group sei für ihn ein Signal für die Zukunftsfähigkeit der Reichsstraße.  Auch Albert Riedelsheimer (Die Grünen) erklärte die Entscheidung seiner Fraktion, die gegen den Verkauf gestimmt hatte. Seiner Meinung nach hätte man "die Ärmel hochkrempeln müssen", dann hätte man das auch selbst geschafft. Aber er räumte auch ein, dass man mit Erwin Müller einen guten Investor gefunden habe, von dem er allerdings auch Kompromissbereitschaft erwarte.  Manfred Hofer (EBD) hält den Verkauf für die richtige Entscheidung. "Die Stadt hätte die Sanierung nicht stemmen können. Mit der Entscheidung für den Verkauf, wollen wir die Attraktivität der Innenstadt steigern."
Auch aus dem Publikum gab es nach den Ausführungen der Stadträte noch einige Wortmeldungen, die den Verkauf des Tanzhauses zum Teil befürworteten, zum Teil auch ihre Bedenken äußerten. Der Donauwörther Franz Deibler sorgte sich unter anderem darum, ob auch in Zukunft die Saalmiete für Vereine noch bezahlbar sein werde. Oberbürgermeister Armin Neudert entgegnete darauf, dass sich auch in Zukunft die Miete an den ortsüblichen Preisen orientieren werde und sicherte den Vereinen auch im gleichen Atemzug die Unterstützung der Stadt zu. Ein weiterer interessierter Bürger, Stefan Klaus, kritisierte scharf die Terminierung der Veranstaltung. Seiner Meinung nach habe man die Bürger ausschließen wollen. Auch dass die Entscheidung zum Verkauf in einer nicht öffentlichen Sitzung gefallen sei, bemängelte er.
Für den Verkauf sprach sich Markus Sommer, Vorsitzender der City Initiative Donauwörth (CID) aus. Seiner Meinung nach bringe Eigentum eine Verpflichtung mit sich, für die die Stadt nicht die richtigen Kompetenzen habe. Er plädierte dafür, dass die Donauwörther der Erwin Müller Group nun die Chance geben sollen, ein Schmuckstück zu schaffen.
Wie schnell das Projekt Tanzhaus in Angriff genommen werden kann, hängt nun zum einen davon ab wann der finale Vertrag unterschrieben wird und zum anderen, wie lange es dauert bis alle Genehmigungen vorliegen. Erwin Müller rechnet damit, dass bis zum Baubeginn noch ein gutes Jahr vergehen werde. Die eigentliche Bauzeit werde dann wohl 2 Jahre betragen.

Redaktionsleitung. Unterwegs für blättle und online. Ob Wirtschaft, neue Technologien oder Historisches aus dem Landkreis – sie fühlt sich in allen Themen zu Hause und mittlerweile auch in unserem Landkreis, als „Zugreiste“ aus dem Raum Dillingen. Hinterfragt gründlich und bringt Dinge auf den Punkt.

Telefon: 0906 / 977 598 - 21; E-Mail: dhahn@donau-ries-aktuell.de